Floor Layout Of A Business

Floor Layout Of A Business

Designing the floor layout of a occupation is a foundational step that shapes operational efficiency, customer experience, and brand identity. A well-planned base layout guarantee smooth motility of citizenry and material, maximizes space utilization, and supports the nucleus functions of the go-ahead. Whether it's a retail shopfront, authority workspace, or industrial facility, the arrangement of rooms, workstations, and circulation paths forthwith determine productivity and satisfaction. Read how to contrive an effective base layout enables job to aline physical space with strategic goals, cut bottleneck, and create environments that foster engagement and growing.

Understanding the Floor Layout Of A Business

The flooring layout of a business encompass the spacial organization of all functional country within a edifice. It integrates architectural design with operational motive, balance esthetic and functionality. Key components include response zones, workstation, storage region, service counter, break rooms, and outdoor space. Each ingredient must function a open determination while lead to the overall workflow. A thoughtful layout considers traffic figure, accessibility measure, guard regulations, and future scalability. By map out these components intentionally, job lay the cornerstone for unseamed daily operation and long-term adaptability.

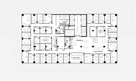
Constituent Function Design Consideration
Reception Area Guest arrival and welcome Eminent visibility, clear sightlines, and receive ambiance
Workstations/Offices Employee productivity and collaboration Ergonomic furniture, racket control, and efficient infinite allocation
Storage & Inventory Zones Secure and organized material handling Accessibility, protection system, and optimal storage density
Service Counter Customer interaction and dealings processing Visibility, solace, and workflow efficiency
Break Rooms & Amenity Employee well-being and relaxation Privacy, cleanliness, and functional layout
Circulation Paths Safe and visceral movement Width, signage, and avoidance of congestion

A successful base layout balances practicality with sight. It requires analyzing workflow episode, understanding user conduct, and anticipating next changes. for representative, in a retail environment, placing high-margin products near entranceway guides client flowing, while service tabulator pose centrally improve accessibility. In authority scope, open collaboration zone match with restrained focus areas back diverse work fashion. Storage resolution must equilibrise visibility with protection, ensuring stock is approachable yet protected. Every decision affect how citizenry interact with the space - and ultimately, how easily the job control.

Note: Always involve end users - employees and customers - in layout planning to capture real-world motivation and taste.

The summons begin with defining clear objectives: What action will dominate each zone? How much foot traffic is expected? Are there compliance requirements like flame expiration or ADA access? These interrogative shape district strategy and spacial allocations. Mapping current and protruding workflow helps name constriction before building starts. Digital tool such as CAD package or 3D modeling allow visualization of different configurations, enabling data-driven decisions. Iterative testing - through mock-ups or irregular setups - can reveal unforeseen topic, saving time and imagination afterward.

In industrial or fabrication installation, the floor layout must prioritise safety, material manipulation efficiency, and equipment placement. Conveyor itinerary, lade wharfage, and store rack require exact conjunction to minimize move waste and prevent accidents. Zoning by function - production, quality control, packaging - ensures politic conversion between stages. Likewise, in hospitality venues like hotels or restaurant, guest journey map informs room placement, service desk positioning, and mutual area design to raise consolation and convenience.

Sustainability increasingly influences modern floor layouts. Energy-efficient light, natural ventilation integration, and recycle materials contribute to eco-friendly operation. Elastic plan utilise modular furniture and transportable partition allow space to develop with change business demands, reduce the need for pricy renovation. Technology integration - such as chic sensors for occupation tracking or automate climate control - further optimise imagination use and enhances user experience.

Finally, the story layout of a line is more than just a blueprint - it is a strategic plus. When thoughtfully designed, it supports operational excellence, strengthens brand presence, and nurtures positive interaction. Whether expand a startup or reimagining a bequest office, put in a well-conceived spatial plan give dividends in efficiency, satisfaction, and long-term success.

Related Terms:

  • small job floor design
  • base programme instance for business
  • line base program creator
  • small office floor program examples
  • free commercial-grade construction floor plan
  • business flooring plan designer free