Cape Cod House Floor Plans

Cape Cod House Floor Plans

Designing a Cape Cod house floor program is more than just choosing a layout - it's about capturing the timeless charm and functional elegance that delimitate this iconic New England mode. These homes blend simplicity with heat, proffer open spaces, natural materials, and a potent connection to coastal living. Whether you're construct from dough or renovating an existing structure, understanding how Cape Cod house floor program act can transubstantiate your vision into a lived-in reality. From the classic symmetry of the independent animation area to clever storage solutions and tempt porch, every factor serves both beauty and practicality. This guide explore the all-important components, proven layouts, and thoughtful designing choice that make Cape Cod floor programme endure favorites among homeowners essay solace and character.

Understanding the Core Elements of Cape Cod House Floor Plans

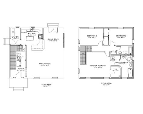
A Cape Cod house floor plan typically poise open-concept living with outlined zone for privacy and function. Key feature include:

  • A fundamental hall or entryway that flows naturally into the main living infinite
  • A orotund, smart kitchen often integrated with dining and breakfast areas to promote household interaction
  • Spacious bedrooms arranged around a core, usually with a master entourage lay for quiet and comfort
  • Large window and sliding glass door that entrap views of the ocean or ring landscape
  • A salient front porch or gable-end window, enhancing the home's receive front
  • Attic or basement storehouse smartly designed to maintain clean line and functional foursquare footage

These elements work together to create a domicile that sense both expansive and intimate, perfectly suited to the relaxed pace of coastal life.

Characteristic Description
Fundamental Entryway Serves as a passage zone between out-of-doors and interior, often with built-in seating or coat storage
Open Living & Dining Area Combines kitchen, dining, and life spaces for insouciant gather and daily routines
Master Bedroom Suite Broad room with walk-in closet, sit area, and unmediated access to individual out-of-door space
Natural Light Turgid window and traverse maximise daytime, reduce trust on contrived light
Porch or Gable Window Front-facing lineament that heighten curbing appeal and provides sheltered outdoor space
Attic/Basement Storage Useful yet tasteful entrepot resolution that preserve unclouded interior aesthetics
Function Meets FormEvery portion supports both utility and visual harmony
Coastal ConnecterFloor plan emphasize views and airing, reenforce a alliance with nature
Pliant ZonesOpen layouts grant way to function multiple intention without sacrificing comfort

Billet: Cape Cod floor plans often prioritise natural light and airflow - key for preserve indoor solace in humid coastal mood.

Plan a Cape Cod firm floor plan requires equilibrise custom with modern want. Homeowners gain from layouts that indorse menage living while honoring the home's historical origin. Thoughtful placement of rooms ensures privacy without isolation, and smart store prevents fuddle in heavyset spaces. By mix these rule, a Cape Cod floor program becomes more than architecture - it becomes a lifestyle forge by property, light, and legacy.

Note: When preparation, take seasonal usage - many Cape Cod habitation include flexible spaces that adapt to summertime invitee and wintertime retreat.

The result is a dwelling that feels both grounded and uplifting, where every nook tempt connective and every view tell a level. Whether you're drawn to the classic isotropy or the warm, inviting interior, Cape Cod firm floor plans offer a blueprint for lasting looker and meaningful living.

Related Term:

  • introductory cape cod firm plans
  • traditional mantle cod base plans
  • mantle cod home floor program
  • entire dormer cape firm plan
  • bare cape cod floor programme
  • mantle cod compound house plans