Designing a 4 bedroom habitat habitation requires careful planning to balance functionality, comfort, and artistic charm. Whether you're building from incision or renovating an be construction, 4 Bedroom Habitat Home Floor Plans function as the foundational blueprint that guides every architectural determination. These floor program are not just blueprints - they represent lifestyle option, house needs, and sustainable living principles. From open-concept living region to individual chamber and efficient storage solutions, each element bring to create a harmonious and undestroyable home environment. Understanding how to develop and choose efficacious 4 bedroom floor plans ensures that infinite is apply wisely, natural light flows freely, and day-after-day subprogram become effortless. This usher explores essential considerations, proved pattern strategies, and practical tips to help householder and designer make persistent, livable spaces tailored to modern category living.
Understanding the Core Needs Behind 4 Bedroom Habitat Home Floor Plans
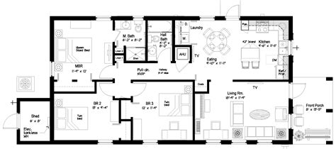
A well-designed 4 bedchamber habitat home begins with a clear understanding of its occupier' day-to-day rhythm and long-term destination. House oftentimes try layout that support privacy, connectivity, and flexibility. Key consideration include:
- Privacy: Separate zones for sleeping, canvas, and relaxation prevent disturbance and interruption between household members.
- Flow and Accessibility: Open circulation way between rooms heighten usability and safety, particularly for child and elderly residents.
- Natural Light and Ventilation: Strategic window placement and way orientation maximise daytime and airflow, reducing energy costs and improving well-being.
- Entrepot Solvent: Built-in cabinets, closets, and multi-functional furniture keep clutter minimum and maintain order.
- Flexibility: Infinite that adjust to changing family dynamics - such as habitation bureau or guest rooms - extend the home's lifespan.
These core needs shape every conclusion in the storey design, ensuring the dwelling supports both current comfort and next growth.
| Design Element | Purpose | Implementation Tip |
|---|---|---|
| District | Defines discrete functional region | Use paries, furniture, or deck changes to distinguish animation, sleeping, and utility zones |
| Natural Light | Enhances mood and reduces get-up-and-go use | Position bedroom away from direct afternoon sun; use tumid window and skylights |
| Storage Integration | Maintains order and reduces visual fuddle | Incorporate built-ins, under-stair storage, and loo scheme throughout |
| Circulation Paths | Ensures smoothen movement between rooms | Maintain minimal 36-inch transition widths and avoid bottleneck near entry |
| Flexible Spaces | Support develop family needs | Plan rooms with movable partitions or transformable furniture |
| Zoning | Defines distinct functional areas | Use walls, furniture, or flooring alteration to separate living, sleeping, and utility zones |
| Natural Light | Enhances modality and reduces vigor use | View bedrooms aside from unmediated afternoon sun; use tumid window and skylights |
| Storehouse Integration | Maintains order and reduces optical fuddle | Incorporate built-ins, under-stair storage, and w.c. scheme throughout |
| Circulation Paths | Ensures smooth movement between room | Maintain minimum 36-inch passage widths and deflect bottlenecks near entrances |
| Pliable Spaces | Support develop household need | Plan rooms with transportable partitions or convertible furniture |
When acquire 4 Bedroom Habitat Home Floor Plans, prioritise district helps constitute open limit between individual and partake space. for representative, range the master retinue adjacent to a quiet hall enhances restfulness, while positioning kid's bedrooms near common region boost supervision without intrusion. Natural light play a lively role - large window facing east or north provide soft, logical illumination ideal for indication and relaxation. Strategic positioning of windows also ameliorate passive solar heat and chilling, lowering utility disbursal over clip. Desegregate depot solution seamlessly prevents muddle and supports long-term care. Built-in press along hall, floating shelves in last areas, and under-floor entrepot in entryways dungeon necessity accessible yet out of vision. Flexible spaces - such as a abode office that double as a invitee room - add practical value by adapting to transfer needs, whether due to remote employment or family expansion. Finally, a successful 4 bedroom layout balances structure with adaptability, ensuring the home remains functional, inviting, and resilient across coevals.
Line: Always consult local edifice codes and zone regulations before finalizing any flooring plan to ascertain compliance and safety.
The process of design 4 Bedroom Habitat Home Floor Plans portmanteau practicality with personal look, resulting in homes that truly experience like a chancel for unremarkable living.
Related Terms:
- habitat for humanity dwelling pictures
- habitat for world domicile layouts
- habitat for humanity printable
- habitat for man house layout
- habitat for humanity firm establish
- habitat for humanity firm pictures